W.A. Vultostraat 131 3523 TW, Utrecht
Uitgelichte kenmerken
Omschrijving
Ruimte, licht en volop wooncomfort!
INSTAPKLARE CHARMANTE JAREN ’30 TUSSENWONING (Energielabel A, Woonoppervlakte 111 m²) waar sfeer, moderne afwerking en een zonnige tuin op het westen samenkomen. Deze gezinswoning biedt vier slaapkamers, een volledig geïsoleerde woonruimte en een ideale ligging nabij het levendige centrum van Utrecht. Geniet van de rust van een woonwijk, terwijl hotspots als Rotsoord en het Ledig Erf op een steenworp afstand liggen. Met vijf zonnepanelen, een moderne badkamer en een fijne indeling is dit een plek waar je zó wilt wonen.
Ligging en omgeving
De W.A. Vultostraat ligt in de wijk Hoograven van Utrecht. Museumkwartier en Ledig Erf liggen binnen 5 minuten fietsafstand. Ook ben je binnen 10 minuten fietsen op de Neude. Er is een zeer goede verbinding met de Waterlinieweg en ’t Goylaan en je kunt binnen 5 à 10 minuten op de A27 en A12 zijn. Daarnaast is het station Vaartsche Rijn op ca. 5 minuten loopafstand en Utrecht Centraal op 5 minuten fietsen. Naast de goede bereikbaarheid en uitvalswegen is er voldoende gelegenheid om te parkeren. Op korte afstand zijn er meerdere basisscholen, zijn er leuke speeltuinen en een kinderboerderij.
In de directe omgeving vind je een groot aantal winkels voor de dagelijkse boodschappen. En alle gemakken van wat de stad Utrecht te bieden heeft, zoals de populaire hotspot Rotsoord, de gezellige Twijnstraat, het Ledig Erf met de heerlijke cafeetjes en restaurantjes, én winkelcentrum Smaragdplein op loopafstand.
Indeling
Begane grond
Bij binnenkomst valt direct de verzorgde afwerking op: een stijlvolle hal met lambrisering en een karaktervolle trapopgang leidt je via een moderne glazen taatsdeur naar het woongedeelte. De woonkamer ademt sfeer dankzij de erker aan de voorzijde, die zorgt voor prettig veel lichtinval, én de houtkachel die een warme ambiance creëert tijdens de wintermaanden.
De ruimte is strak afgewerkt met een lichte laminaatvloer en heeft een open indeling waarbij woon- en eetgedeelte mooi in elkaar overlopen. Aan de achterzijde is de eethoek gesitueerd, perfect voor lange diners of gezellige spelletjesavonden. De open keuken grenst direct aan de eetkamer en is voorzien van greeploze, hoogglans kasten, een donker natuurstenen werkblad en diverse inbouwapparatuur.
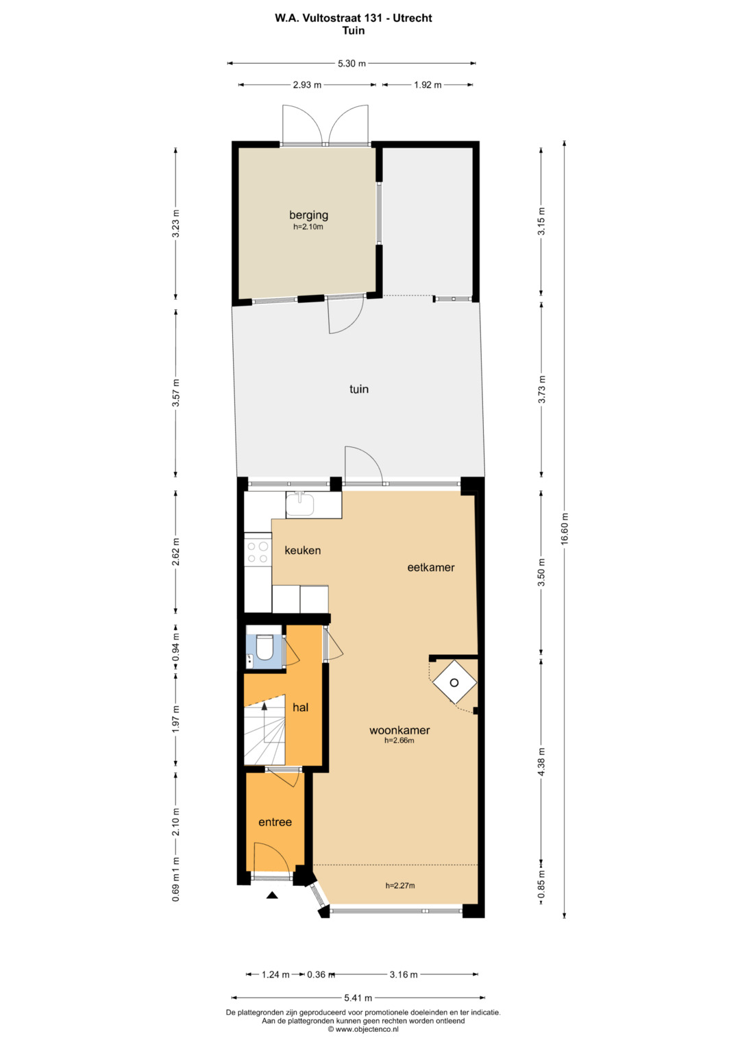
Tuin en berging
De achtertuin is gesitueerd op het westen, waardoor je hier de hele middag én avond van de zon kunt genieten. De tuin is strak betegeld en onderhoudsvriendelijk ingericht met een verhoogde plantenbak en gezellige zitplek. Achterin is een ruime stenen berging aanwezig, voorzien van elektra, ideaal voor fietsen, klusspullen of als hobbyruimte. Aangrenzend aan de berging bevindt zich een overdekte ruimte, momenteel in gebruik als overkapping met zitplek voor een barbecue. De tuin beschikt daarnaast over een praktische achterom.
Eerste verdieping
De eerste verdieping telt drie slaapkamers en een fraai afgewerkte badkamer. De hoofdslaapkamer bevindt zich aan de achterzijde, is voorzien van een praktische inbouwkast. En is heerlijk licht dankzij het grote raam en openslaande deur naar het balkon.
Aan de voorzijde bevindt zich een tweede volwaardige slaapkamer met een grote raampartij. De derde kamer, momenteel ingericht als hobby- en klusruimte, is ideaal als werkplek, kinderkamer of extra berging. Deze ruimte beschikt eveneens over een raam en natuurlijke lichtinval.
De badkamer, modern afgewerkt met grote marmerlook tegels, een royale inloopdouche met regendouche, dubbele wastafel met meubel, tweede toilet én comfortabele vloerverwarming.
Tweede verdieping (zolder)
De tweede verdieping is verrassend ruim en momenteel ingericht als één grote open ruimte met volop lichtinval aan beide zijden. Dankzij de opgetrokken achtergevel en het brede dakkapel aan de voorzijde is er niet alleen veel ruimte, maar ook een fijne lichtbeleving. Met minimale ingrepen tover je deze etage om tot twee volwaardige (slaap)kamers, waarmee je het woonoppervlak optimaal benut.
De verdieping beschikt over een moderne laminaatvloer, strak gestuukte wanden en inbouwspots voor een strakke uitstraling. De wasmachineaansluiting is netjes weggewerkt in een praktische opstelling met werkblad en spoelbak. Daarnaast is er volop bergruimte in de knieschotten en is ook de opstelling van de omvormer en cv-installatie keurig in het zicht weggewerkt.
Bijzonderheden
• Riante gezinswoning uit de jaren ’30
• 111 m² woonoppervlakte
• Volledig geïsoleerd (dak-, vloer-, muurisolatie, HR- en HR++-glas)
• Energielabel A
• Instap klaar
• Heerlijke zonnige achtertuin op het westen met achterom
• Vrijstaande stenen berging met elektra en overkapping
• Vier slaapkamers, met mogelijkheid tot vijf
• Moderne badkamer met inloopdouche, dubbele wastafel, tweede toilet en vloerverwarming
• Opgetrokken achtergevel
• ATAG cv-ketel uit 2023 (eigendom)
• Voorzien van glasvezel en tv-kabelaansluiting
• 5 zonnepanelen aanwezig
• Diverse rolluiken ( elektrisch bedienbaar )
• Zonnescherm ( elektrisch bedienbaar )
• Screen ( elektrisch bedienbaar )
• Handige opberg ruimtes
• Gelegen nabij station Vaartsche Rijn, Ledig Erf en Rotsoord
• Op loopafstand van winkelcentrum Smaragdplein, scholen en horeca
Interesse in deze woning? Neem uw eigen NVM-aankoopmakelaar mee. Een overzicht van collega NVM makelaars vindt u op Funda.
Kenmerken
Algemeen
- StatusVerkocht
- Koopprijs€ 625.000,- k.k.
- AanvaardingIn overleg
Bouwvorm
- Soort objectWoonhuis
- Soort woningEengezinswoning
- Type woningTussenwoning
- Bouwjaar1936
- BouwvormBestaande bouw
- LiggingenIn woonwijk
Indeling
- Woonoppervlakte111 m2
- Perceeloppervlakte92 m2
- Inhoud363 m3
- Aantal kamers5
- Aantal slaapkamers4
- Aantal badkamers1
Energie
- EnergieklasseA
- VerwarmingCV ketel
- C.V.-KetelATAG
- Bouwjaar C.V.-Ketel2023
- WarmwaterCV ketel
- IsolatieDakisolatie, Muurisolatie, Vloerisolatie, HR glas
- CombiketelJa
- BrandstofGas
- EigendomEigendom
Buitenruimte
- TuinAchtertuin
- HoofdtuinAchtertuin
- Oppervlakte36 m2
- Ligging hoofdtuinWest
- AchteromJa
- Kwaliteit tuinVerzorgd
Bergruimte
- Schuur / BergingVrijstaand steen
- VoorzieningenVoorzien van elektra
- Totaal aantal1
Parkeergelegenheid
- Parkeer faciliteitenBetaald parkeren
- GarageGeen garage
Dak
- Soort dakDwarskap
- Materiaal dakPannen, Bitumineuze Dakbedekking
Overig
- Permanente bewoningJa
- Onderhoud binnenGoed
- Onderhoud buitenGoed
- Huidig gebruikWoonruimte
- Huidige bestemmingWoonruimte















